3121 Burberry Lane SWShallotte, NC 28470




Mortgage Calculator
Monthly Payment (Est.)
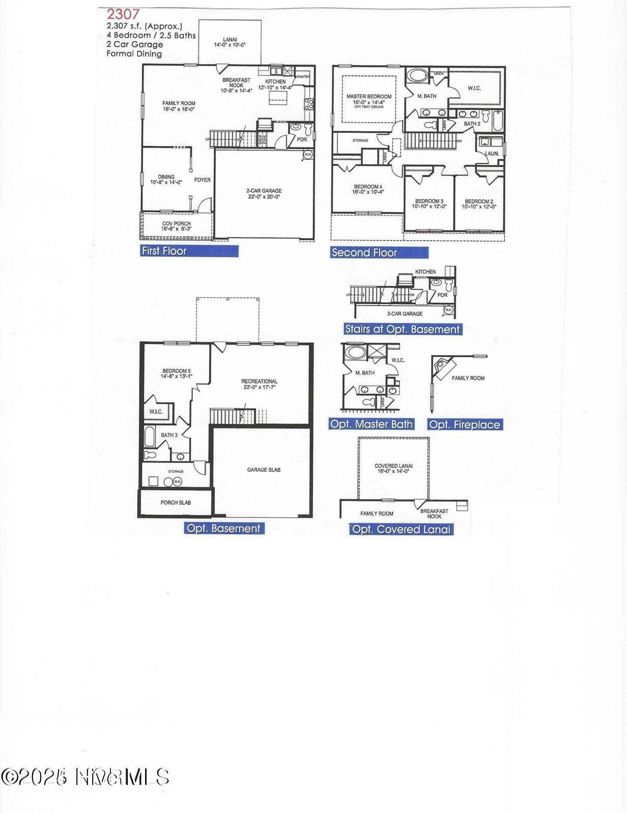
$1,674Welcome to your dream home in the sought-after Rutledge subdivision of Shallotte, NC! This charming two-story gem offers 4 spacious bedrooms, All bedrooms are located on the second floor. The primary bedroom fits a king bed and includes an en-suite with a fiberglass shower and a gorgeous walk-in closet that will impress. The master bedroom is located on the on the primary level and there is bonus located on the second level. Located in a gated community packed with top-notch amenities—sparkling pool, basketball court, and tennis court—you'll have fun and relaxation just steps from your front door. Plus, you're just minutes from great shopping, dining, and coastal adventures. Whether you're looking for your forever home or a coastal retreat, this one checks all the boxes! This home is still under construction. More photos will be added as home is completed. Photos are representative of the same home in another community.
| 2 months ago | Price changed to $366,850 | |
| 2 months ago | Listing updated with changes from the MLS® | |
| 3 months ago | Listing first seen on site |
The data relating to real estate on this website comes in part from the Internet Data Exchange program of Hive MLS, and is updated as of 2026-01-23 07:31 PM UTC. All information is deemed reliable but not guaranteed and should be independently verified. All properties are subject to prior sale, change, or withdrawal. Neither listing broker(s) shall be responsible for any typographical errors, misinformation, or misprints, and shall be held totally harmless from any damages arising from reliance upon these data. Copyright 2026 Hive MLS


Did you know? You can invite friends and family to your search. They can join your search, rate and discuss listings with you.