346 Hanover Lakes DriveWilmington, NC 28401




Mortgage Calculator
Monthly Payment (Est.)
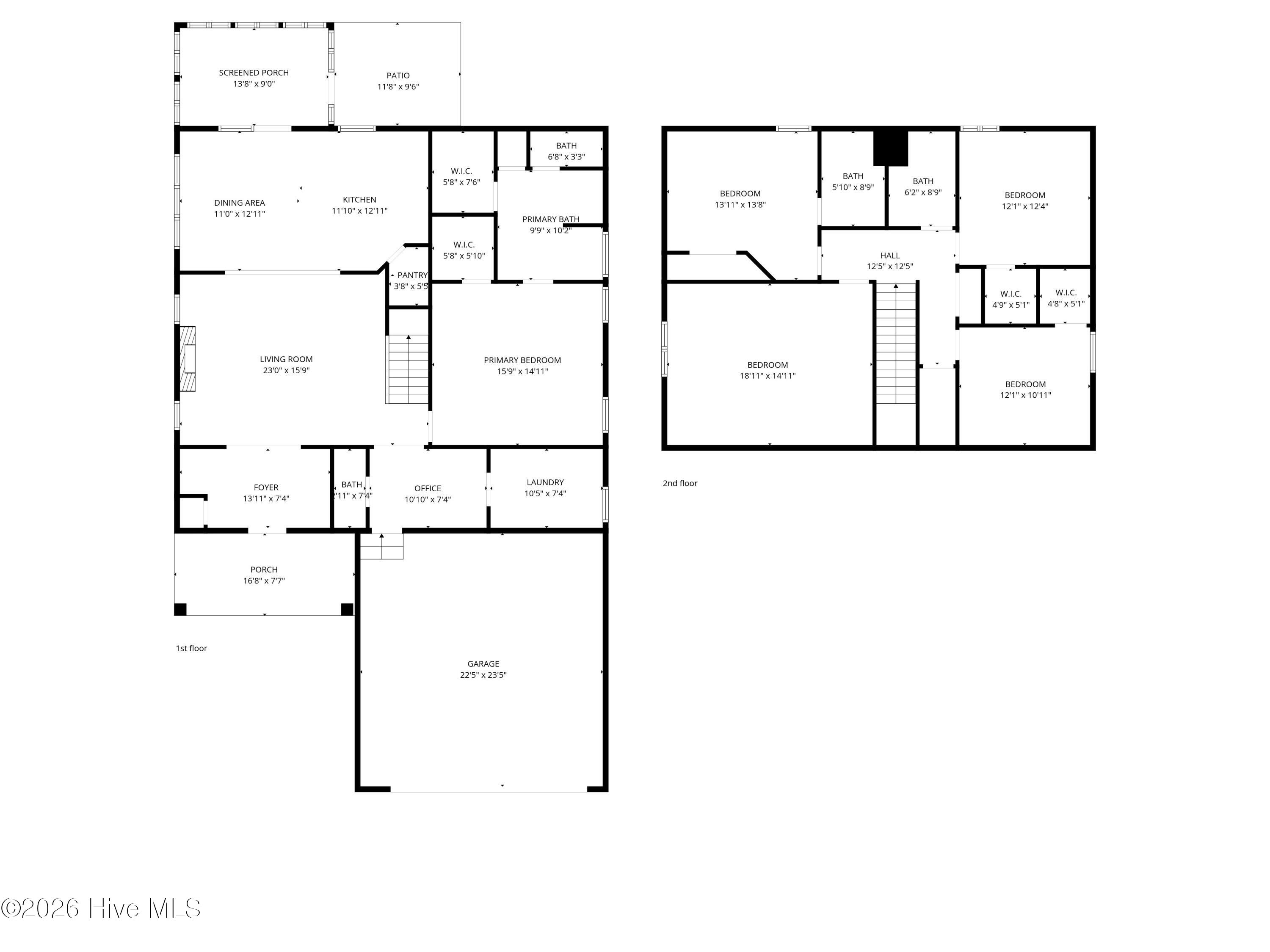
$2,532Welcome to this beautifully maintained former model home, thoughtfully designed with upgrades and custom features throughout. From the moment you step inside, you'll notice the pride of ownership and attention to detail that truly set this home apart. The heart of the home features open-concept living, perfect for both everyday comfort and entertaining. The spacious kitchen is a standout, complete with a large island, abundant counter space, and a sink that overlooks the private backyard — making meal prep both functional and enjoyable. Custom built-ins and shelving in the living room add charm, character, and exceptional storage. Upstairs offers generous space throughout, with roomy bedrooms and flexible areas ideal for a home office, playroom, or guest retreat. The layout provides comfort and versatility for today's lifestyle. Step outside to enjoy your private backyard oasis, offering peaceful outdoor living and plenty of room to relax or entertain. The spacious screened-in porch extends your living space year-round — perfect for morning coffee, evening gatherings, or simply enjoying the outdoors without the elements. Meticulously cared for and move-in ready, this home blends thoughtful upgrades, extra storage, and timeless design — all in a setting that feels both private and welcoming.
| 18 hours ago | Listing first seen on site | |
| 18 hours ago | Listing updated with changes from the MLS® |
The data relating to real estate on this website comes in part from the Internet Data Exchange program of Hive MLS, and is updated as of 2026-02-13 06:46 AM UTC. All information is deemed reliable but not guaranteed and should be independently verified. All properties are subject to prior sale, change, or withdrawal. Neither listing broker(s) shall be responsible for any typographical errors, misinformation, or misprints, and shall be held totally harmless from any damages arising from reliance upon these data. Copyright 2026 Hive MLS


Did you know? You can invite friends and family to your search. They can join your search, rate and discuss listings with you.