227 Back StreetNewport, NC 28570




Mortgage Calculator
Monthly Payment (Est.)
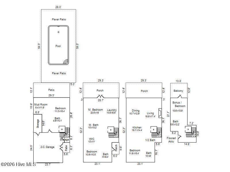
$11,794Extraordinary waterfront living awaits at 227 Back Street, an exceptional coastal retreat thoughtfully designed to deliver luxury, durability, and seamless indoor-outdoor living. Showcasing sweeping panoramic ICW views, this meticulously crafted custom home by Ty Gay Builders combines elevated construction with resort-style amenities and refined finishes, creating an ideal setting for both everyday comfort and unforgettable entertaining. The exterior is engineered for both beauty and resilience, featuring a standing-seam roof, hurricane shutters, and multiple levels of waterproof decking with sunshades on the ground, first, and second waterside floors. Outdoor living spaces are enhanced by a fully equipped kitchen with a Firemagic 36-inch gas grill, granite countertops, stainless steel cabinets, and sink, set on an epoxy-finished patio. An outdoor gas fireplace, gas fire bowl, and all-weather television create an inviting atmosphere for year-round enjoyment. The 35-foot Alaglas pool is a true focal point, complete with waterline tile, integrated lighting, and travetine cool decking. The bulkheaded waterfront lot includes a lighted observation deck, while paver walkways, a full-width pervious paver driveway, professionally lit grounds, and a fully fenced backyard provide functionality, and curb appeal. Construction and systems throughout the home reflect modern convenience. Concrete pads support pedestal-mounted zoned HVAC units and a generator. Anderson exterior doors are installed throughout the home with the exception of the side garage door, and a Ring front door camera system enhances security. Whole-house WiFi and a 240-volt outlet is in place for an optional electric vehicle charger can be added by the new owners. Inside, the home continues to impress with site-finished hickory flooring across the first, second, and third floors, complemented by luxury vinyl plank flooring on the ground level. Upgraded interior finishes are found throughout, with granite or solid-surface countertops. Shiplap trim accents multiple rooms and stairwells, adding coastal character and architectural interest. The spa-inspired bathrooms and owners' suite elevate everyday living. Tile baths throughout feature glass shower enclosures and handheld showers, while the primary bathroom offers a contour soaking tub with lumbar support, along with heated bidet in the primary water closet. The primary bedroom is highlighted by a tray ceiling with accent lighting, and the primary, and great room, feature electric fireplaces with multicolor displays. And the primary closet is outfitted with custom cabinetry for exceptional organization. The garage and utility spaces are equally appointed, featuring an epoxy -finished garage floor with a tile accent wall, built-in workshop cabinetry, and stainless steel oversized utility sink. Every detail has been carefully considered to balance luxury, functionality and peace of mind. This includes two dishwashers in the kitchen for growing families. In the kitchen you will also find a 48'' Gas Range, Double wall Oven, Built in Microwave, and Wine Cooler. 227 Back Street is located in the gated community of Cannonsgate. Cannonsgate boast resort styled amenities, such as community pool, tennis courts, clubhouse, putting green, pier with gazebo, trails, golf-cart friendly, playground, kayak launch, active social committee with adult and children events, boat ramp, and fish cleaning station.
| 2 months ago | Listing first seen on site | |
| 2 months ago | Listing updated with changes from the MLS® |
The data relating to real estate on this website comes in part from the Internet Data Exchange program of Hive MLS, and is updated as of 2026-05-05 01:25 PM UTC. All information is deemed reliable but not guaranteed and should be independently verified. All properties are subject to prior sale, change, or withdrawal. Neither listing broker(s) shall be responsible for any typographical errors, misinformation, or misprints, and shall be held totally harmless from any damages arising from reliance upon these data. Copyright 2026 Hive MLS


Did you know? You can invite friends and family to your search. They can join your search, rate and discuss listings with you.